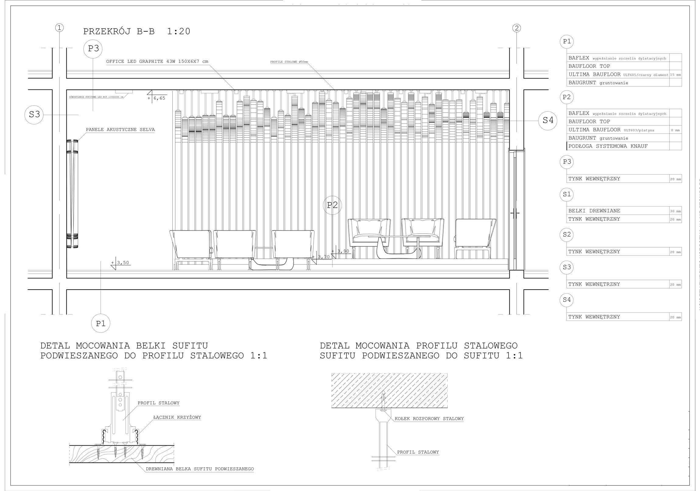
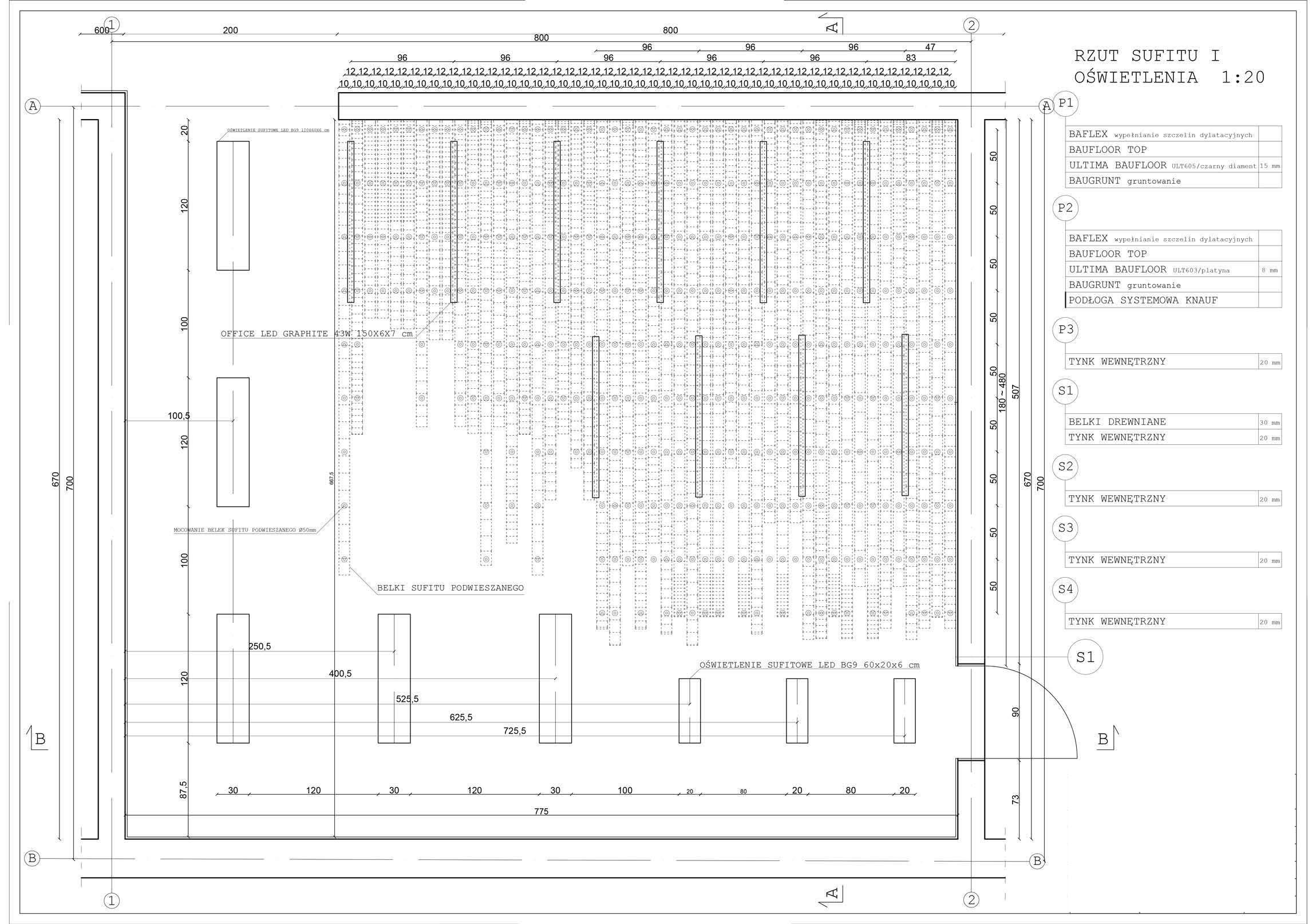
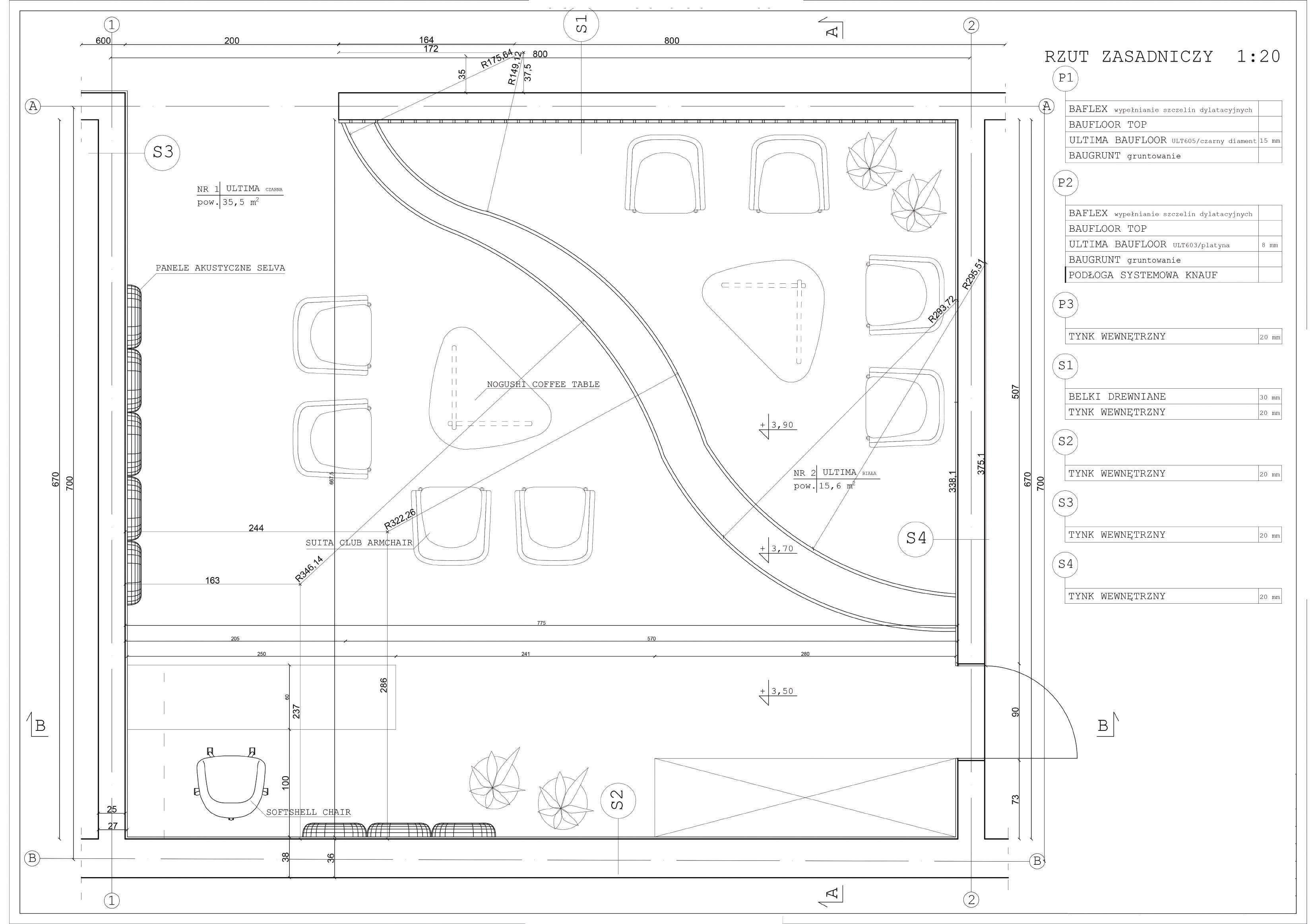
Poczekalnia do studia nagraniowego

Projekt koncepcyjny poczekalni do studia nagraniowego, opracowany podczas studiów inżynierskich.